Contact us
Schedule a visit
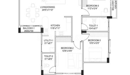
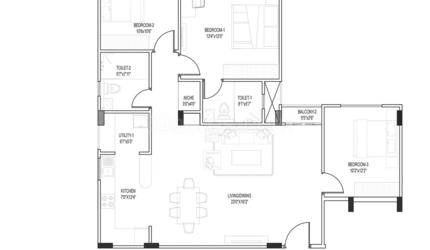
NR Windgates is an ultimate reflection of the urban chic lifestyle located in Thanisandra Main Road, Bangalore. The project hosts in its lap exclusively designed Residential Apartments, each being an epitome of elegance and simplicity.
RCC framed structure (seismic zone compliance)
Wienerberger Porotherm clay hollow blocks for all walls wherever applicable
Covered car park in basement and ground level
Lobby flooring with superior quality ceramic tile
Upper floors lobby flooring in imported vitrified tiles and lift cladding in granite
All lobby walls cladded till 5 feet height and texture paint up to ceiling height
Superior paint on ceilings in service lobby and service staircase
Superior quality ceramic tile flooring and skirting
Plastic emulsion paint (weather paint) for walls and ceiling
MS handrail as per design
All walls/ceiling painted in weather paint
Fitting and fixtures of Jaquar or equivalent
Main Door and Internal Doors: 7 Feet height opening with pre-molded flush shutter and
Engineered wood frame and polish on both sides with architraves
Superior quality ceramic tile flooring
Superior quality ceramic wall tiling on walls up to the false ceiling/ ceiling
False ceiling with grid panels
Granite counter with vanity in master bedroom toilet
All toilets have Jaquar/equivalent fittings
Glass partition for shower area
Doors: 7 feet height opening of engineered wood frames and architraves
With flush door shutter's with laminate on both sides
External Doors: UPVC frames and sliding shutters
High quality ironmongery and fittings for all doors
Concealed wiring with PVC insulated copper wires and modular switches
Sufficient power outlets and light points will be provided
Telephone, television, and A/C points in living and all bedrooms will be provided
Internet points in all the flats will be provided
Cable TV and telephone points will be provided in the living room and all bedrooms
ELCB and individual meters will be provided for all apartments
Ardex texture paint on external walls
Plastic emulsion paint (weather paint) on internal walls and ceiling
Enamel paint on all MS railing
Imported vitrified tiles in the foyer, living, dining, corridors, all bedrooms and balconies
Suitable size and capacity passenger and service lift in every block
Located at Thanisandra Main Road in Bangalore, NR Windgates is inspiring in design, stirring in luxury and enveloped by verdant surroundings. NR Windgates is in troupe with many famous schools, hospitals, shopping destinations, tech parks and every civic amenity required, so that you spend less time on the road and more at home.